Overview
- Updated On:
- February 8, 2026
- 4 Bedrooms
- 3 Bathrooms
Description
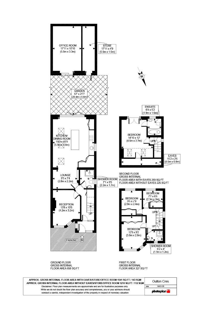
The living room features an original fireplace, creating a warm and inviting focal point, while the heart of the home is the fantastic open-plan kitchen/diner with a cosy snug area-ideal for both everyday living and entertaining. The property has recently benefited from a loft conversion, providing additional versatile accommodation.
Bi-folding doors open from the kitchen onto an impressive 100ft south-facing rear garden, flooding the home with natural light and creating an excellent indoor-outdoor flow for entertaining and family life. The garden includes a newly built outhouse to the rear, perfect for a home office, gym, or studio space.
Further advantages include off-street parking, a highly convenient location within walking distance of local shops and schools, most notably this address was catchment in 2025 for Dame Alice Owen’s School.
Excellent transport links with Potters Bar mainline station less than one mile away, making this an ideal choice for commuters for easy access into Central London.





