Overview
- Updated On:
- December 15, 2025
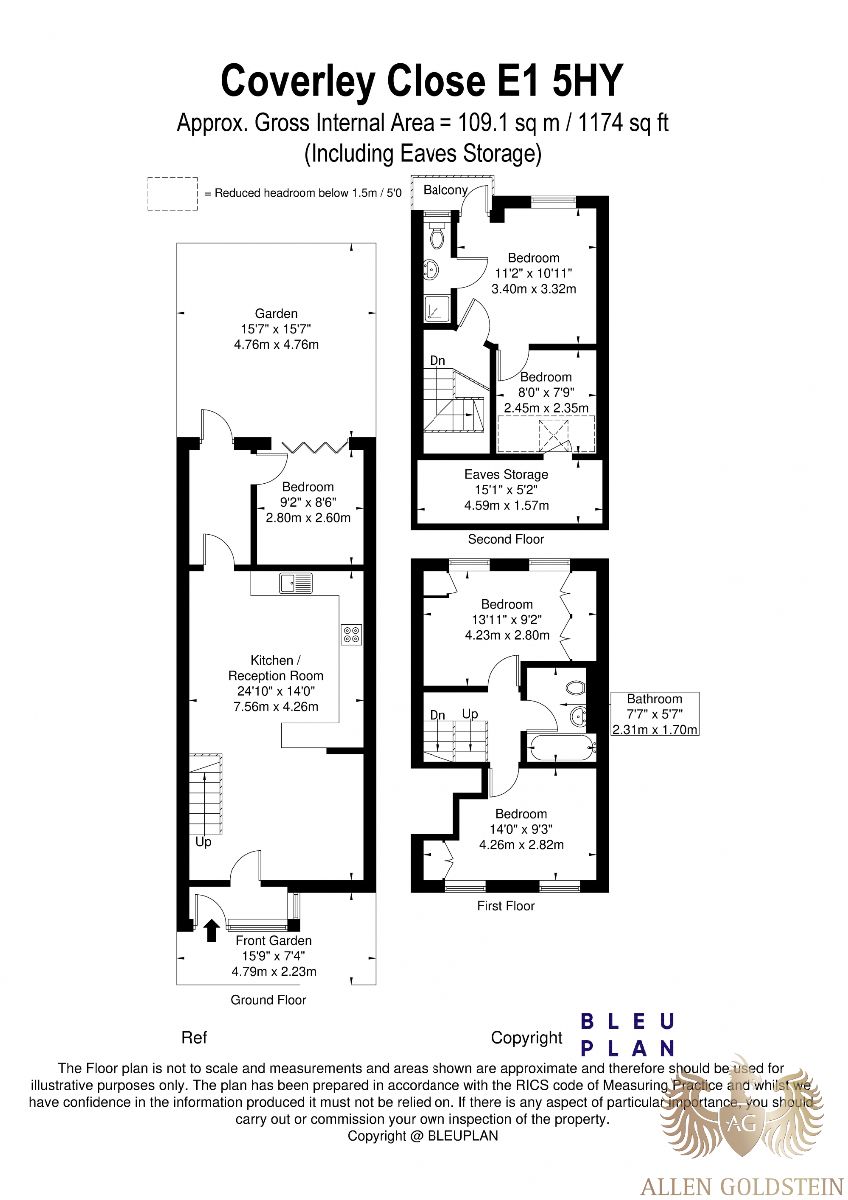
- 4 Bedrooms
- 2 Bathrooms
Description
*No sharers or Students* A truly stunning and unique 4 bed 2 bath house split over two floors in the amazing location of Bricklane.
This house boasts an enormous open plan kitchen and lounge area. The lounge will be fully furnished with sofas and a dinning table. The kitchen is fully integrated with modern appliances including a dishwasher.
It comprises of four double bedrooms one of which has an en suite and a balcony. All bedrooms come fully furnished with double beds, wardrobes and chest of drawers.
There is also a fifth room which can be used as a study or for storage.
As well as having an en suite, it also has a huge fully tiled modern bathroom.
The house comes with a large patio garden furnished with a huge wooden table and chairs as well as a barbecue perfect for the sunny weather.
The property is conveniently located in a private close and comes with its own parking.
Benefits
8 minutes’ walk to Whitechapel station (Hammersmith & City Line and District Line)
5 minutes’ walk to the famous and vibrant Bricklane
Tucked away in a quiet cul de sac giving a perfect retreat to relax.
Close to an array of shops, supermarkets, bars, clubs, etc.
Deposit: £4,557.69
Holding Deposit: £911.53





